Descripción
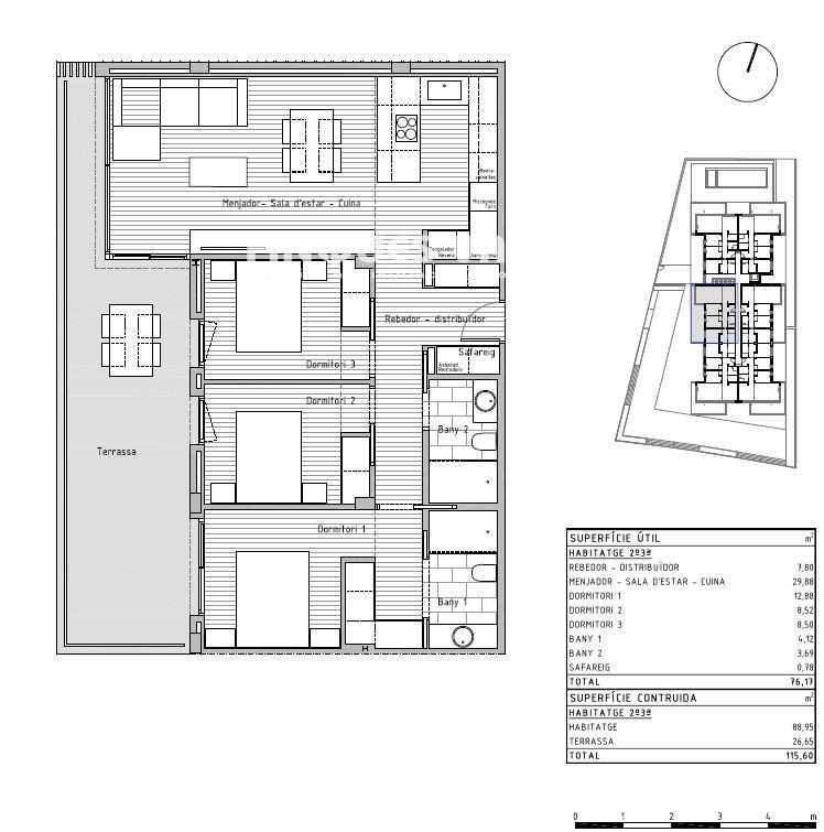
Si desea vivir en un entorno privilegiado cerca de todos los servicios no deje escapar esta oportunidad venga a visitar esta nueva construcción de un edificio plurifamiliar compuesto por 24 viviendas situado en la localidad de Cunit. .Este bloque de nueva construcción ha sido diseñado con un enfoque en la elegancia moderna. Cada piso ha sido meticulosamente diseñado para maximizar el espacio y la luz, creando un ambiente acogedor y atractivo y con los más altos estándares de calidad. Desde los acabados interiores hasta los electrodomésticos de alta gama, como cada pequeño detalle, garantizando la máxima satisfacción para del propietario..Con una superficie construida total de 115,60 m2 de vivienda, y 88,95 m2 construidos interior de vivienda se encuentra distribuidos 3 amplias habitaciones (1 de ellas suitte), salón comedor con cocina americana de 31,43 m2 totalmente equipada con todos los electrodomésticos, 2 baños completos, 1 lavadero con los electrodomésticos integrados de lavadora y secadora marca BALAY, recibidor, terraza de 26,65 m2, suelos porcelanamicos en toda la vivienda, carpintería exterior de aluminio de color gris claro de perfil eficiente y con rotura de puente térmico, carpintería interior con puertas correderas lacadas en blanco..Además, contamos con zona comunitaria con piscina, ascensor y plazas de parking opcionales. .El entorno y municipio:.Cunit se encuentra situado en la comarca del Bajo Penedés y en la provincia de Tarragona aunque está incluido en la tercera corona de la región urbana de Barcelona. Limita con Segur de Calafell (localidad del municipio de Calafell), de la misma comarca, así como con Cubellas, en la comarca del Garraf, y Castellet y Gornal, en la comarca del Alto Penedés, ambos de la provincia de Barcelona..Su paisaje es típicamente mediterráneo, desde los 2,5 km de playas de arena fina, protegidas por los espigones que le proporciona sus formas semicirculares características, pasando por las planicies agrícolas (denominadas Prats de Cunit i Plana del Castell) hasta las sierras del centro (Sierra de Sant Antoni) y norte del municipio, siendo parte de las últimas montañas de la sierra litoral catalana...